Vente Fonds de commerce SELTZ
292 000 € * - 245 m2 - 5 Chambres - Réf. 39087

Vente Fonds de commerce
SELTZ
292 000 € *
Prix : 292 000 € *
* Les honoraires d'agence seront intégralement à la charge du vendeur
  • 10 Pièces
  • 5 Chambres
  • 245 m2

Restaurant Licence IV & PMU - 150 couverts - Proximité de SELTZ

À saisir ! Fonds de commerce d'un restaurant traditionnel avec Licence IV et activité PMU, situé à proximité de Seltz. L'affaire est cédée pour cause de départ à la retraite, avec un très bon chiffre d'affaires et un fort potentiel de développement.

- Caractéristiques :

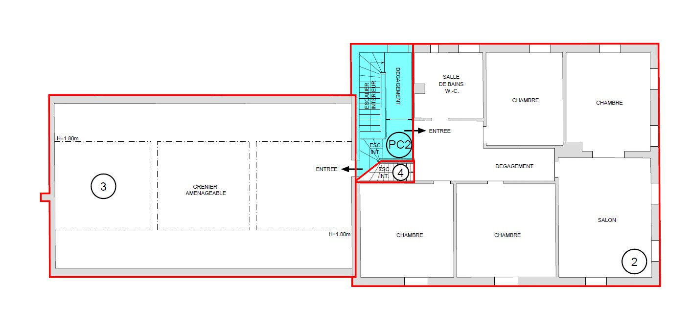
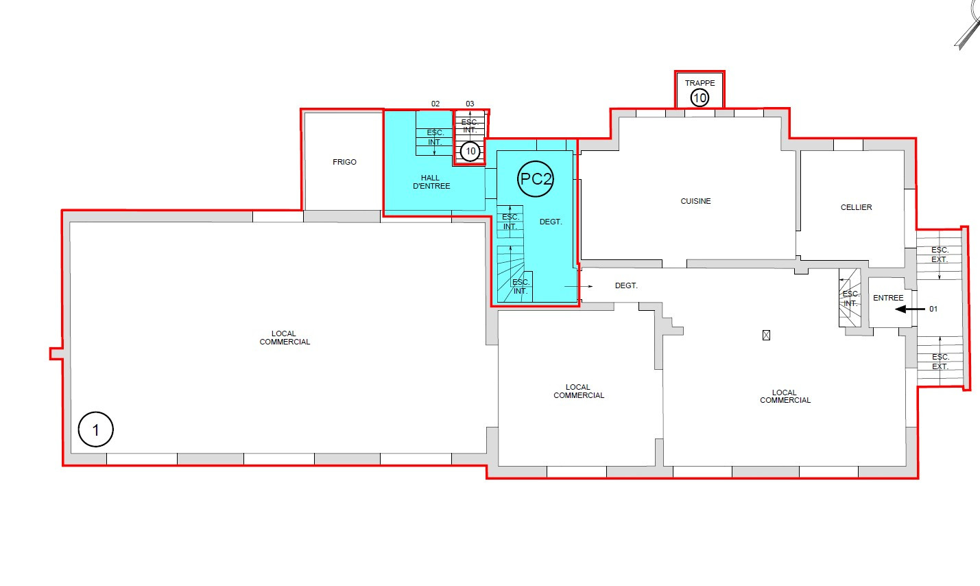
Surface totale d'environ 245 m², comprenant :

- Une grande salle de restauration (jusqu'à 150 couverts),
- Une cuisine professionnelle équipée,
- Chambre froide, annexes,
- Un appartement de 110 m² inclus (5 chambres + 1 salle de bains).

Activité actuelle : cuisine traditionnelle, journées à thème... Établissement connu localement avec une clientèle fidèle.

Inclus dans la vente :

- Licence IV,
- Activité PMU,
- Grand et petit fonds,
- Un appartement de 110 m² inclus (5 chambres + 1 salle de bains).

Environnement dynamique, stationnement à proximité.

À prévoir :

Des travaux de rénovation sont à envisager pour moderniser l'établissement et exploiter pleinement son potentiel.

Potentiel de développement important : restauration événementielle, privatisations, ventes à emporter...


Prix du fonds de commerce : 292 000 € HAI (négociable).

Accompagnement possible pour faciliter la reprise.

Contacter Marie-France ou Audrey pour toutes informations ou visites !
  • Référence : 39087
  • Ville : SELTZ
  • Transaction : Vente
  • Type de bien : Fonds de commerce
  • Prix de vente : 292 000 €
  • Surface : 245 m2
  • Terrain : 729 m2
  • Nbr de pièces : 10
  • Nbr de chambres : 5
Performance énergétique (en KWh/m2/an)
Dpe
Performance climatique (en Kg éq CO2/m2/an)
Ges
Montant estimé des dépenses annuelles d’énergie pour un usage standard : année de référence - de 0€ à 1027€
%
%

Vos mensualités

*apport calculé sur une base de 20%

Informations non contractuelles, fournies à titre indicatif
67 - Bas Rhin
Montant En % du prix du bien
Emoluments notaire %
Copies & formalités notaire 800 %
Total notaire %
Droits de mutation 5.80%
Publicité foncière 0.10%
Debours 400 %
TVA (sur part notaire) %
Total %
Informations non contractuelles, fournies à titre indicatif
Visite virtuelle
Contactez-nous
* champs obligatoires
  • 0
  • 0